Характеристики:

350 000 руб.
  • Общая площадь: 102 м2
  • Жилая площадь: 26 м2
  • Размеры дома : 7 x 7 м
  • Количество комнат : 6
  • Количество спален : 3
  • Этажность : 1

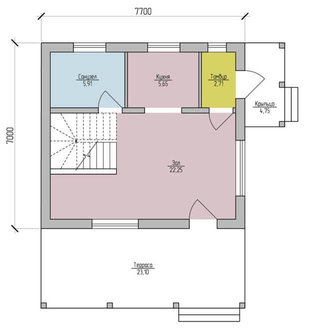
Проект дома из теплоблоков уютный одноэтажный с мансардой
общей площадью 102,3 м2,
жилой площадью 25,9 м2.

В доме на первом этаже находятся тамбур, зал, кухня и санузел. На втором этаже находятся холл и 3 спальни.

Основные характеристики:

  •  Общая площадь: 102,3 м2
  •  Жилая площадь: 25,9 м2
  •  Фундаменты: ленточный мелкозаглубленный с общей монолитной плитой сверху «перевернутая чаша»
  •  Наружные стены: теплоблоки СуперСтоун
  •  Окна: металлопластиковые двухкамерные
  •  Двери: металлические
  • Межэтажное перекрытие — ЖБ плиты,
  • Кровля — утепленная металлочерепица
  • Угловой внутренний 123 шт.

  • Угловой наружный большой 32 шт.

  • Угловой наружный малый 122 шт.

  • Финишный под крышу рядный 233 шт.

  • C четвертью половинчатый 778 шт.

  • Для проемов половинчатый 12 шт.

  • Рядный 2076 шт.

  • Половинчатый 5 шт.

  • Поясной 677 шт.

  • Проемный рядный двустор. 22 шт.

  • Простеночный с притолкой 2 шт.

  • Для проемов 45 шт.

  • Эркерный большой ( 120 С ) 23 шт.

  • Эркерный малый ( 120 С ) 4 шт.

  • Эркерный внутренний 3 шт.

  • Эркерный полукруглый 12 шт.

  • Перемычка 19 шт.

Популярные домокомплекты домов из теплоблоков